Achterweg 80, HEKELINGEN verkocht onder voorbehoud

    Achterweg 80 te Hekelingen

    Een geheel instapklare en tot in de puntjes afgewerkte vrijstaande woning met garage die eigenlijk alles heeft, ruimte, een mooi perceel en vrij uitzicht over de polder.

    Deze prachtige woning is de afgelopen jaren met veel zorg en toewijding gemoderniseerd en op de juiste manier verbouwd. Alles is tot in de puntjes afgewerkt, waardoor je hier direct kunt intrekken en nog jarenlang kunt genieten van de luxe, de ruimte en het vrije uitzicht. Ervaar het beste van beide werelden met deze woning: geniet van een rustige ligging in het dorpse Hekelingen, terwijl je toch profiteert van de nabijheid van de stad met al haar voorzieningen. Ontdek de perfecte balans tussen rust en stedelijke gemakken! Een heerlijke plek om echt thuis te komen.

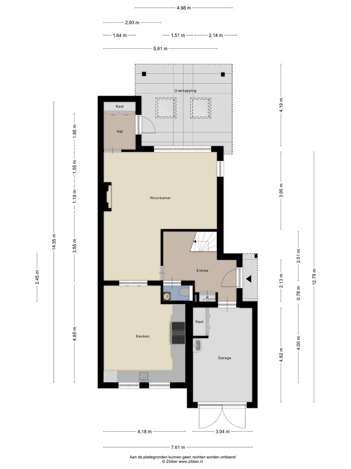
    Begane grond: Mooie voortuin, o.a. met opstelplaats voor 2 auto’s, entree met luifel aan de zijkant van de woning, hal, toegang naar de garage met openslaande garagedeuren, meterkast, modern toilet met fonteintje, royale trapopgang, tuingerichte woonkamer met gashaard, welke door de praktische ruimte op diverse manieren in te delen is. Open woonkeuken aan de voorzijde met heerlijk de ruimte voor een eetkamertafel. Dit is de plek waar je ‘s morgens lekker je ontbijtje geniet en ‘s avonds lekker met het gehele gezin aan tafel kan dineren. De keuken is in landhuisstijl, in hoek-opstelling en voorzien van diverse inbouwapparatuur, zoals een fornuis met 6-gaspitten en 2 ovens. Verder is er een afzuigkap, een spoelbak aan de raamzijde, vaatwasser en koel/vriescombinatie. Vanuit de woonkamer is er toegang naar de bijkeuken met vaste kastruimte en een tuindeur naar de achtertuin. Hier kun je naar buiten en kom je allereerst op de royale terrasvlonder met een fraaie overkapping, welke tevens is v.v. 2 glazen lichtkoepels. Vanuit hier loop je zo de tuin in met verschillende zitplekken, kleine borders en een ruime berging van 5 x 3 meter (2020). De tuin is ca. 25 meter diep, dus er is altijd wel een heerlijk plek te vinden om te vertoeven of om gewoon lekker in de tuin bezig te zijn. Ook aan de zijkant van de woning is nog een aparte berging gemaakt, welke als hobbyruimte of schuur kan dienen. Er zijn dus 2 bergingen van 5 x 3 meter.

    1e Verdieping: Overloop, apart toilet met fonteintje, voorslaapkamer met een nieuwe airco en prachtige schuifwandkast, 2 achterslaapkamers, waarvan één met een nieuwe kastenwand. Badkamer met inloopdouche, badkamermeubel met 2 wastafels, een spiegelkast en handdoekradiator. Deze verdieping is v.v. een doorlopende laminaatvloer en alle slaapkamers zijn v.v. nieuwe rolluiken.

    2e Verdieping: Overloop, bergruimte met opstelplaats voor de CV ketel (Nefit 2021) en de wasapparatuur. Er is een 4e slaapkamer met een extra dakraam aan de achterzijde. Ook deze verdieping is afgewerkt met een mooie laminaatvloer.

    Bijzonderheden:

    • alles aan deze woning is perfect afgewerkt en zeer goed onderhouden
    • gelegen aan de rand van Hekelingen met vrij uitzicht
    • de openslaande garagedeuren zijn geplaatst in 2020 (met nog garantie tot 2026)
    • de begane grond is v.v. een plavuizenvloer met vloerverwarming
    • er zijn 2 bergingen (5,00x3,00) en een garage
    • de markiezen zijn geplaatst in 2022 (3 stuks)
    • de schuur in de achtertuin is geplaatst in 2020
    • nieuwe deuren geplaatst op elke verdieping
    • op de bovenverdieping (laminaat) en beneden (plavuizen); deze zijn ook vervangen gedurende de verbouwing(en)
    • voor- en achtertuin zijn in 2021 geheel aangepakt incl. verlichting
    • energielabel B
    • oplevering in overleg (vanaf maart 2026)

    Algemeen:

    • perceelsgrootte 524m²
    • eigen grond
    • bouwjaar ca. 2007
    • woonoppervlakte (excl. garage) ca. 145m²
    • inhoud ca. 590m³
    • kadastraal bekend gem. Spijkenisse, sectie F, nummer 8126, groot 356ca.
    • kadastraal bekend gem. Spijkenisse, sectie F, nummer 8091, groot 168ca.

    De hierboven beschreven woninginformatie is geheel vrijblijvend en slechts bedoeld als uitnodiging tot het starten van onderhandelingen. Ten aanzien van de juistheid van de vermelde informatie, maatvoering, bouwjaren, oppervlakte- en inhoudsmaten kan door Mudde Makelaardij geen aansprakelijkheid worden aanvaard, noch kan aan de vermelde informatie enig recht worden ontleend.

    De Meetinstructie is gebaseerd op de NEN2580. De Meetinstructie is bedoeld om een meer eenduidige manier van meten toe te passen voor het geven van een indicatie van de gebruiksoppervlakte. De Meetinstructie sluit verschillen in meetuitkomsten niet volledig uit, door bijvoorbeeld interpretatieverschillen, afrondingen of beperkingen bij het uitvoeren van de meting.

    Overdracht

    Vraagprijs
    € 845.000,- k.k.
    Status
    verkocht onder voorbehoud
    Aanvaarding
    in overleg

    Bouw

    Soort woning
    woonhuis
    Soort woonhuis
    eengezinswoning
    Type woonhuis
    vrijstaande woning
    Aantal woonlagen
    3
    Kwaliteit
    luxe
    Bouwvorm
    bestaande bouw
    Bouwjaar
    2007
    Huidige bestemming
    woonruimte
    Onderhoud binnen
    uitstekend
    Onderhoud buiten
    goed tot uitstekend
    Dak
    zadeldak
    Voorzieningen
    mechanische ventilatie, dakraam, rolluiken en airconditioning
    Isolatie
    dakisolatie, muurisolatie, vloerisolatie en dubbel glas

    Energie

    Energielabel
    B
    Warm water
    c.v.-ketel

    Bergruimte

    Parkeergelegenheid
    openbaar parkeren
    Schuur/berging
    vrijstaand hout

    Indeling

    Aantal kamers
    7
    Aantal slaapkamers
    4

    Buitenruimte

    Ligging
    aan rustige weg, vrij uitzicht en landelijk gelegen
    Tuin
    achtertuin met een oppervlakte van 250 m² en is gelegen op het noorden

    Oppervlakten en inhoud

    Woonoppervlakte
    144 m²
    Perceeloppervlakte
    524 m²
    Inhoud
    590 m³
    Inpandige ruimte oppervlakte
    15 m²
    Buitenruimte oppervlakte
    22 m²
    Achterweg 80, HEKELINGEN foto 0
    Achterweg 80, HEKELINGEN foto 1
    Achterweg 80, HEKELINGEN foto 2
    Achterweg 80, HEKELINGEN foto 3
    Achterweg 80, HEKELINGEN foto 4
    Achterweg 80, HEKELINGEN foto 5
    Achterweg 80, HEKELINGEN foto 6
    Achterweg 80, HEKELINGEN foto 7
    Achterweg 80, HEKELINGEN foto 8
    Achterweg 80, HEKELINGEN foto 9
    Achterweg 80, HEKELINGEN foto 10
    Achterweg 80, HEKELINGEN foto 11
    Achterweg 80, HEKELINGEN foto 12
    Achterweg 80, HEKELINGEN foto 13
    Achterweg 80, HEKELINGEN foto 14
    Achterweg 80, HEKELINGEN foto 15
    Achterweg 80, HEKELINGEN foto 16
    Achterweg 80, HEKELINGEN foto 17
    Achterweg 80, HEKELINGEN foto 18
    Achterweg 80, HEKELINGEN foto 19
    Achterweg 80, HEKELINGEN foto 20
    Achterweg 80, HEKELINGEN foto 21
    Achterweg 80, HEKELINGEN foto 22
    Achterweg 80, HEKELINGEN foto 23
    Achterweg 80, HEKELINGEN foto 24
    Achterweg 80, HEKELINGEN foto 25
    Achterweg 80, HEKELINGEN foto 26
    Achterweg 80, HEKELINGEN foto 27
    Achterweg 80, HEKELINGEN foto 28
    Achterweg 80, HEKELINGEN foto 29
    Achterweg 80, HEKELINGEN foto 30
    Achterweg 80, HEKELINGEN foto 31
    Achterweg 80, HEKELINGEN foto 32
    Achterweg 80, HEKELINGEN foto 33
    Achterweg 80, HEKELINGEN foto 34
    Achterweg 80, HEKELINGEN foto 35
    Achterweg 80, HEKELINGEN foto 36
    Achterweg 80, HEKELINGEN foto 37
    Achterweg 80, HEKELINGEN foto 38
    Achterweg 80, HEKELINGEN foto 39
    Achterweg 80, HEKELINGEN foto 40
    Achterweg 80, HEKELINGEN foto 41
    Achterweg 80, HEKELINGEN foto 42
    Achterweg 80, HEKELINGEN foto 43
    Achterweg 80, HEKELINGEN foto 44
    Achterweg 80, HEKELINGEN foto 45
    Achterweg 80, HEKELINGEN foto 46
    Achterweg 80, HEKELINGEN foto 47
    Achterweg 80, HEKELINGEN foto 48
    Achterweg 80, HEKELINGEN foto 49
    Achterweg 80, HEKELINGEN foto 50
    Achterweg 80, HEKELINGEN foto 51
    Achterweg 80, HEKELINGEN foto 52
    Achterweg 80, HEKELINGEN foto 53
    Achterweg 80, HEKELINGEN foto 54
    Achterweg 80, HEKELINGEN foto 55
    Achterweg 80, HEKELINGEN foto 56
    Achterweg 80, HEKELINGEN foto 57
    Achterweg 80, HEKELINGEN foto 58
    Achterweg 80, HEKELINGEN foto 59
    Achterweg 80, HEKELINGEN foto 60
    Achterweg 80, HEKELINGEN foto 61
    Achterweg 80, HEKELINGEN foto 62
    Achterweg 80, HEKELINGEN foto 63
    Achterweg 80, HEKELINGEN foto 64
    Achterweg 80, HEKELINGEN foto 65
    Achterweg 80, HEKELINGEN foto 66
    Achterweg 80, HEKELINGEN foto 67
    Achterweg 80, HEKELINGEN foto 68
    Achterweg 80, HEKELINGEN foto 69
    Achterweg 80, HEKELINGEN foto 70
    Achterweg 80, HEKELINGEN foto 71
    Achterweg 80, HEKELINGEN foto 72
    Achterweg 80, HEKELINGEN foto 73
    Achterweg 80, HEKELINGEN foto 74
    Achterweg 80, HEKELINGEN foto 75
    Achterweg 80, HEKELINGEN plattegrond 0
    Achterweg 80, HEKELINGEN plattegrond 1
    Achterweg 80, HEKELINGEN plattegrond 2
    Achterweg 80, HEKELINGEN plattegrond 3
    Achterweg 80, HEKELINGEN plattegrond 4
    Achterweg 80, HEKELINGEN plattegrond 5

    Heeft u een vraag?