J. de Baanlaan 139, SPIJKENISSE € 475.000,- k.k.

    J. de Baanlaan 139 te Spijkenisse - Rietvelden

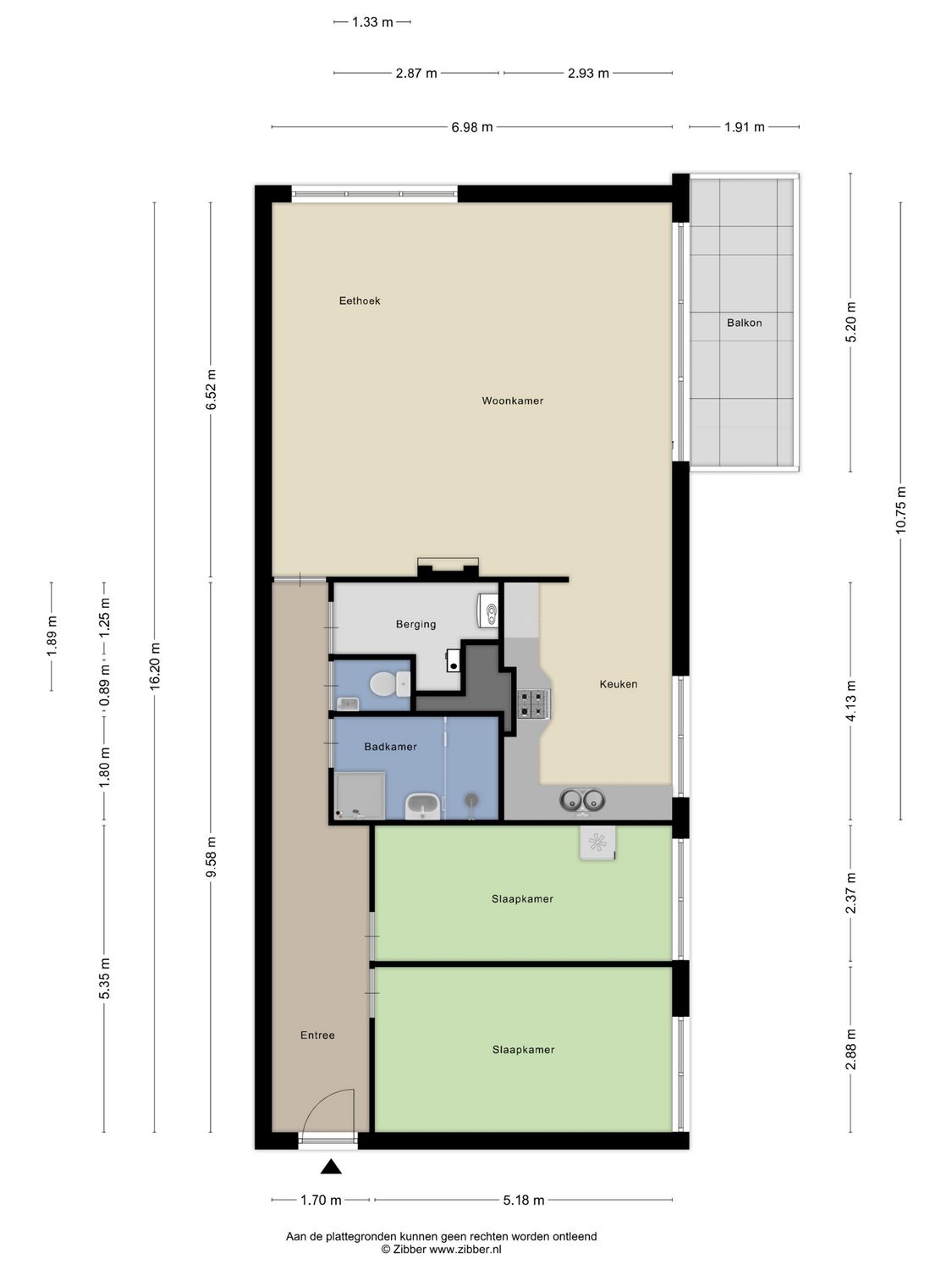
    Mooi gelegen 3-kamer appartement (6e etage, ca. 111m²) met berging en privé-parkeerplaats in de mooie wijk ‘De Rietvelden. Vanaf het balkon geniet u van een schitterend vrij uitzicht over het buitengebied Spijkenisse!

    De woning ligt aan de buitenrand van de populaire wijk ‘De Rietvelden’, op een gunstige locatie nabij winkels, openbaar vervoer, uitvalswegen en recreatievoorzieningen. Dankzij de zonnige ligging heeft het appartement veel lichtinval en een aangename sfeer. Laat u verrassen en plan vandaag nog een vrijblijvende bezichtiging!

    Indeling:
    Begane Grond: Verzorgde centrale entree met brievenbussen, bellentableau, toegang tot de bergingen, trappenhuis en liftinstallatie.

    6e Verdieping: Ruime centrale hal met op elke verdieping 3 woningen, meterkast. Entree van de woning, hal met videofoon, 2 slaapkamers (afm. resp. 2.88x5.18 en 2.37x5.18). Nette badkamer met inloopdouche én douchecabine, radiator en wastafel. Apart toilet met fonteintje, berging met opstelplaats voor de cv-ketel (Vaillant 2012), mechanische ventilatie unit en wasmachineaansluiting. De royale zongerichte woonkamer geeft middels een schuifpui toegang tot het balkon met prachtig uitzicht, het balkon is tevens voorzien van een zonnescherm (2024). De woonkamer is v.v. meerdere ramen met glas in lood, de ramen zijn tevens v.v. screens. Open keuken in hoekopstelling met veel kastruimte (zowel onder- als bovenkastjes), spoelbak, kookplaat, afzuigkap, koelkast en vriezer. Het appartement is voorzien van een doorlopende parket vloer.

    Er is een berging in de onderbouw, alsmede een eigen parkeerplaats.

    Bijzonderheden:
    • eigen parkeerplaats
    • ligging nabij uitvalswegen
    • prachtige ligging met mooi uitzicht
    • energielabel A
    • oplevering in overleg

    Algemeen:
    • bouwjaar 1998
    • VVE ca. € 230,00 per maand
    • woonoppervlakte ca. 111m²
    • inhoud ca. 368m³
    • kadastraal bekend gem. Spijkenisse, sectie E, nummer 5353A, index 16.

    De hierboven beschreven woninginformatie is geheel vrijblijvend en slechts bedoeld als uitnodiging tot het starten van onderhandelingen. Ten aanzien van de juistheid van de vermelde informatie, maatvoering, bouwjaren, oppervlakte- en inhoudsmaten kan door Mudde Makelaardij geen aansprakelijkheid worden aanvaard, noch kan aan de vermelde informatie enig recht worden ontleend.

    De Meetinstructie is gebaseerd op de NEN2580. De Meetinstructie is bedoeld om een meer eenduidige manier van meten toe te passen voor het geven van een indicatie van de gebruiksoppervlakte. De Meetinstructie sluit verschillen in meetuitkomsten niet volledig uit, door bijvoorbeeld interpretatieverschillen, afrondingen of beperkingen bij het uitvoeren van de meting.

    Overdracht

    Vraagprijs
    € 475.000,- k.k.
    Status
    beschikbaar
    Aanvaarding
    in overleg

    VvE checklist

    Inschrijving KVK
    Ja
    Jaarlijkse vergadering
    Ja
    Periodieke bijdrage
    Ja (230,00 per maand)
    Reservefonds aanwezig
    Ja
    Onderhoudsplan
    Ja
    Opstalverzekering
    Ja

    Bouw

    Soort woning
    appartement
    Soort appartement
    portiekflat
    Aantal woonlagen
    1
    Woonlaag
    6
    Kwaliteit
    normaal
    Bouwvorm
    bestaande bouw
    Bouwjaar
    1998
    Open portiek
    nee
    Huidige bestemming
    woonruimte
    Onderhoud binnen
    goed
    Onderhoud buiten
    goed
    Dak
    plat dak
    Bijzonderheden
    toegankelijk voor ouderen en toegankelijk voor gehandicapten
    Voorzieningen
    buitenzonwering, mechanische ventilatie, rolluiken, schuifpui en lift
    Isolatie
    dakisolatie, muurisolatie, vloerisolatie en dubbel glas

    Energie

    Energielabel
    A
    Warm water
    c.v.-ketel

    Bergruimte

    Parkeergelegenheid
    openbaar parkeren
    Schuur/berging
    box

    Indeling

    Aantal kamers
    3
    Aantal slaapkamers
    2

    Buitenruimte

    Ligging
    aan water, aan park, in woonwijk en vrij uitzicht

    Oppervlakten en inhoud

    Woonoppervlakte
    111 m²
    Buitenruimte oppervlakte
    10 m²
    J. de Baanlaan 139, SPIJKENISSE foto 0
    J. de Baanlaan 139, SPIJKENISSE foto 1
    J. de Baanlaan 139, SPIJKENISSE foto 2
    J. de Baanlaan 139, SPIJKENISSE foto 3
    J. de Baanlaan 139, SPIJKENISSE foto 4
    J. de Baanlaan 139, SPIJKENISSE foto 5
    J. de Baanlaan 139, SPIJKENISSE foto 6
    J. de Baanlaan 139, SPIJKENISSE foto 7
    J. de Baanlaan 139, SPIJKENISSE foto 8
    J. de Baanlaan 139, SPIJKENISSE foto 9
    J. de Baanlaan 139, SPIJKENISSE foto 10
    J. de Baanlaan 139, SPIJKENISSE foto 11
    J. de Baanlaan 139, SPIJKENISSE foto 12
    J. de Baanlaan 139, SPIJKENISSE foto 13
    J. de Baanlaan 139, SPIJKENISSE foto 14
    J. de Baanlaan 139, SPIJKENISSE foto 15
    J. de Baanlaan 139, SPIJKENISSE foto 16
    J. de Baanlaan 139, SPIJKENISSE foto 17
    J. de Baanlaan 139, SPIJKENISSE foto 18
    J. de Baanlaan 139, SPIJKENISSE foto 19
    J. de Baanlaan 139, SPIJKENISSE foto 20
    J. de Baanlaan 139, SPIJKENISSE foto 21
    J. de Baanlaan 139, SPIJKENISSE plattegrond 0

    Heeft u een vraag?