Prins Bernhardstraat 44, ZUIDLAND € 299.500,- k.k.

    Prins Bernhardstraat 44 te Zuidland

    Starters opgelet! 2-laagse eengezinswoning, zonnige tuin op het zuidwesten en ligging aan autovrij pad.

    Deze woning is echt voor de handige klusser. Wat daar tegenover staat is dat je deze woning geheel naar eigen smaak en idee kunt verbouwen. En dan staat er wel een aantrekkelijke eengezinswoning met een prima woonoppervlak en een zonnige achtertuin.
    Wonen in Zuidland betekent genieten van de rust en charme van een echt dorp. Alle voorzieningen zoals winkels, scholen en sportverenigingen vind je dichtbij, maar wat deze plek écht uniek maakt zijn de dorpse tradities die hier nog leven. Zo komt iedere donderdagavond de groenteboer nog door de straat – iets wat perfect past bij het gemoedelijke en warme karakter van Zuidland.

    Begane grond: Voortuin, entree, hal met lichtkoepel, berging, meterkast met extra bergruimte, toilet met fonteintje. Ruime, tuingerichte woonkamer (ca. 30m²) met grote ramen wat zorgt voor veel lichtinval. Ook zorgt de open trap voor een prettig ruimtelijk gevoel. Open keuken aan de voorzijde met een modern keukenblok (witte fronten), welke is v.v. diverse apparatuur. De vloer-, wand- en plafondafwerking is wel netjes, maar niet meer van deze tijd. In de diepe achtertuin (ca. 13 meter incl. berging) kun je door de gunstige ligging op het zuidwesten tot in de avond heerlijk genieten van de zon. Er liggen terrastegels, er is een zonneterras met kleine borders, gras, een houten en natuurlijke erfafscheiding, een betonnen berging (met houten afwerking) en een achterom.

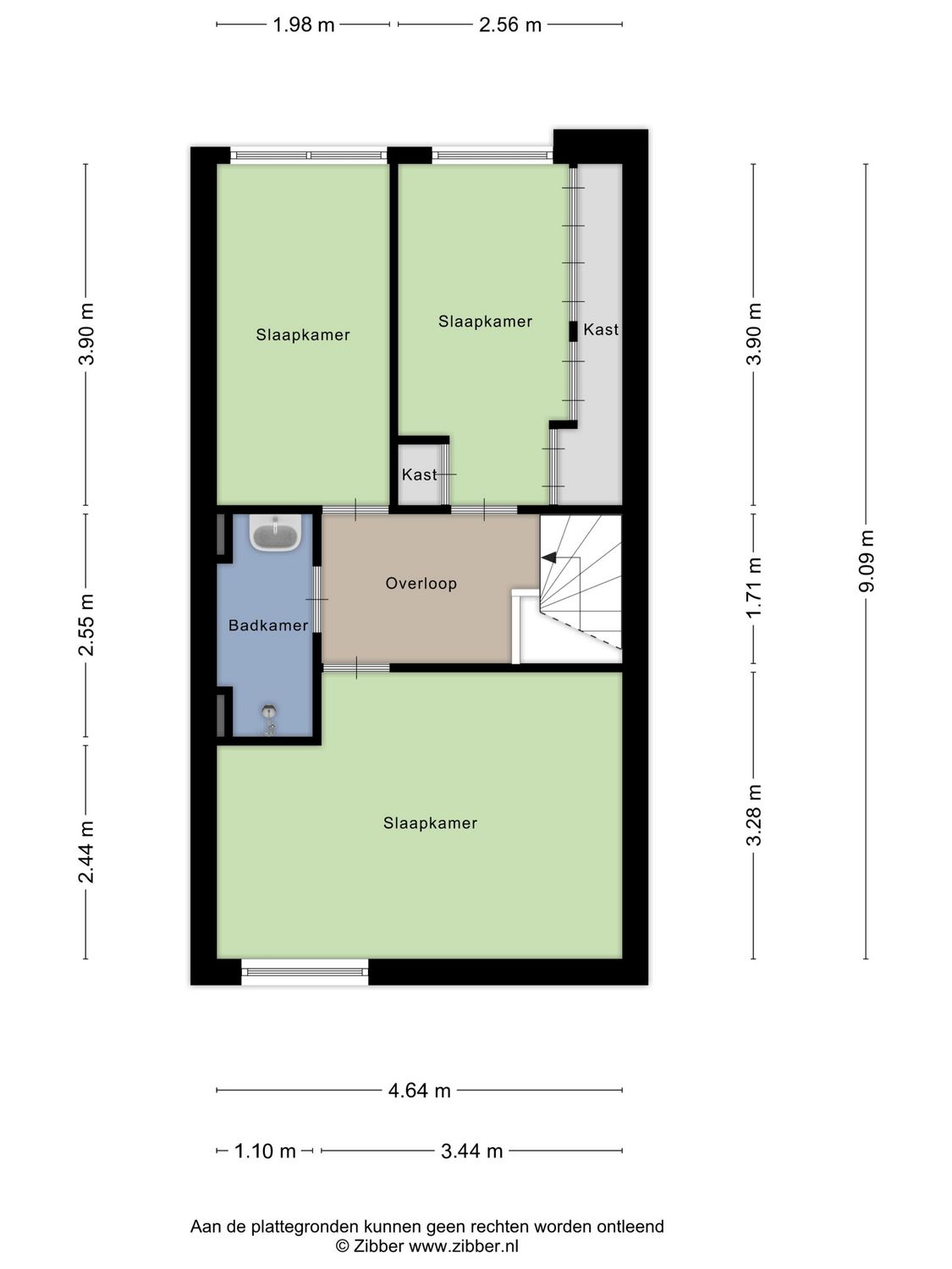
    1e Verdieping: Overloop, toegang naar de 3 slaapkamers. Eenvoudige badkamer met douchegelegenheid en wastafel. Diverse vaste kastruimte (CV combiketel, Vaillant 2008).

    Bijzonderheden:
    • te moderniseren
    • mooie ligging, ideaal voor kinderen
    • zonwering aan de woonkamerzijde, rolluiken op de 1e verdieping
    • 3 slaapkamers
    • deels v.v. dubbel glas
    • oplevering in overleg

    Algemeen:
    • perceel grootte 128m²
    • eigen grond
    • bouwjaar ca. 1963
    • woonoppervlakte ca. 91m²
    • inhoud ca. 321m³
    • kad. bekend gem. Zuidland, sectie B, nummer 2394, groot 128 ca.

    De hierboven beschreven woninginformatie is geheel vrijblijvend en slechts bedoeld als uitnodiging tot het starten van onderhandelingen. Ten aanzien van de juistheid van de vermelde informatie, maatvoering, bouwjaren, oppervlakte- en inhoudsmaten kan door Mudde Makelaardij geen aansprakelijkheid worden aanvaard, noch kan aan de vermelde informatie enig recht worden ontleend.

    De Meetinstructie is gebaseerd op de NEN2580. De Meetinstructie is bedoeld om een meer eenduidige manier van meten toe te passen voor het geven van een indicatie van de gebruiksoppervlakte. De Meetinstructie sluit verschillen in meetuitkomsten niet volledig uit, door bijvoorbeeld interpretatieverschillen, afrondingen of beperkingen bij het uitvoeren van de meting.

    Overdracht

    Vraagprijs
    € 299.500,- k.k.
    Status
    beschikbaar
    Aanvaarding
    in overleg

    Bouw

    Soort woning
    woonhuis
    Soort woonhuis
    eengezinswoning
    Type woonhuis
    tussenwoning
    Aantal woonlagen
    2
    Kwaliteit
    eenvoudig
    Bouwvorm
    bestaande bouw
    Bouwjaar
    1963
    Huidige bestemming
    woonruimte
    Onderhoud binnen
    redelijk
    Onderhoud buiten
    redelijk
    Dak
    plat dak
    Bijzonderheden
    kluswoning
    Voorzieningen
    buitenzonwering, dakraam en rolluiken
    Isolatie
    dakisolatie en gedeeltelijk dubbel glas

    Energie

    Energielabel
    F
    Warm water
    c.v.-ketel

    Bergruimte

    Parkeergelegenheid
    openbaar parkeren
    Schuur/berging
    vrijstaand steen

    Indeling

    Aantal kamers
    4
    Aantal slaapkamers
    3

    Buitenruimte

    Ligging
    aan rustige weg en in woonwijk
    Tuin
    achtertuin met een oppervlakte van 63 m² en is gelegen op het westen

    Oppervlakten en inhoud

    Woonoppervlakte
    91 m²
    Perceeloppervlakte
    128 m²
    Inhoud
    321 m³
    Prins Bernhardstraat 44, ZUIDLAND foto 0
    Prins Bernhardstraat 44, ZUIDLAND foto 1
    Prins Bernhardstraat 44, ZUIDLAND foto 2
    Prins Bernhardstraat 44, ZUIDLAND foto 3
    Prins Bernhardstraat 44, ZUIDLAND foto 4
    Prins Bernhardstraat 44, ZUIDLAND foto 5
    Prins Bernhardstraat 44, ZUIDLAND foto 6
    Prins Bernhardstraat 44, ZUIDLAND foto 7
    Prins Bernhardstraat 44, ZUIDLAND foto 8
    Prins Bernhardstraat 44, ZUIDLAND foto 9
    Prins Bernhardstraat 44, ZUIDLAND foto 10
    Prins Bernhardstraat 44, ZUIDLAND foto 11
    Prins Bernhardstraat 44, ZUIDLAND foto 12
    Prins Bernhardstraat 44, ZUIDLAND foto 13
    Prins Bernhardstraat 44, ZUIDLAND foto 14
    Prins Bernhardstraat 44, ZUIDLAND foto 15
    Prins Bernhardstraat 44, ZUIDLAND foto 16
    Prins Bernhardstraat 44, ZUIDLAND foto 17
    Prins Bernhardstraat 44, ZUIDLAND foto 18
    Prins Bernhardstraat 44, ZUIDLAND foto 19
    Prins Bernhardstraat 44, ZUIDLAND foto 20
    Prins Bernhardstraat 44, ZUIDLAND foto 21
    Prins Bernhardstraat 44, ZUIDLAND foto 22
    Prins Bernhardstraat 44, ZUIDLAND plattegrond 0
    Prins Bernhardstraat 44, ZUIDLAND plattegrond 1
    Prins Bernhardstraat 44, ZUIDLAND plattegrond 2
    Prins Bernhardstraat 44, ZUIDLAND plattegrond 3

    Heeft u een vraag?